icon

Lede

Blekte 201/A, 9340, Lede, BE
HuisTe koop

€ 549.000

icon
3
icon
1
icon
268 m²
icon
229 m²
icon
A

Plan een bezoek

Beschrijving

Ontdek deze recente nieuwbouwwoning van 2023 gelegen te Oordegem in een woongebied met landelijk karakter, waar rust en open ruimte centraal staan. Deze woning biedt een ideale combinatie van comfort, moderne afwerking en een uiterst rustige ligging, perfect voor wie houdt van landelijk wonen met alle voorzieningen binnen handbereik.

Indeling van de woning:

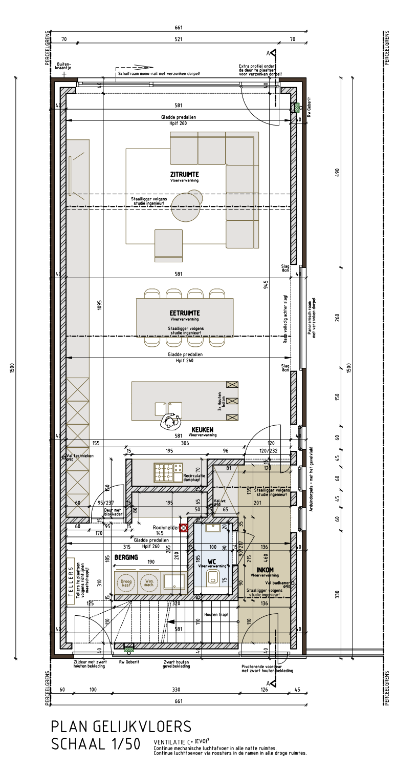
Gelijkvloers:
- inkomhal met toilet
- open leefruimte met aansluitend een volledige uitgeruste open keuken
- Berging toegankelijk via keuken en zijdeur

Eerste verdieping:
- nachthal met volledige kastenwand
- twee slaapkamers
- badkamer met douche, ligbad, dubbele wastafel en toilet

Tweede verdieping:
- 1 slaapkamer
- berging/technische ruimte

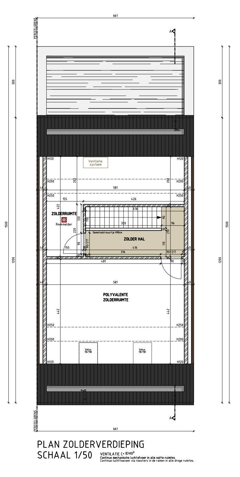
Zolderverdieping
- berging

Troeven:
- Landelijke ligging
- Zuidgerichte tuin
- Vloerverwarming + airco
- Aangelegde tuin met terras, zitlounge en tuinberging
- 20 zonnepanelen + laadpaal
- Domotica Loxone
- Nieuwbouw aan 2% registratie
- EPC A

Bent u op zoek naar een ruime woning in Oordegem?
Mis deze unieke kans niet en vraag vandaag nog uw bezoek aan via deze link: https://albert.immo/listing/7290578

Algemeen

Referentie:
Blekte 201A
Bouwjaar:
2023
Tuin:
Ja
Parking:
Neen
Garage:
Neen

Energie

Energieklasse:
A
Energieverbruik (kWh/m²):
19
Renovatieverplichting:
Neen

Interieur

Woongedeelte:
229 m²
Slaapkamers:
3
Badkamer:
1
Toiletten:
2
Verdiepingen:
2
Kelder:
Neen

Buitenkant

Grondoppervlak:
268 m²
Zwembad:
Neen

Overstromingsgevoeligheid

Overstromingsgevoelig gebied:
Niet overstromingsgevoelig
Afgebakende zone:
Geen
P-score:
A
G-score:
A

Stedenbouwkundige informatie

Bouwvergunning:
Ja
Verkaveling vergunning:
Neen
Stedelijke bestemming:
Onbepaald
Voorkooprecht:
Neen
Soort rechterlijke beslissing:
Geen rechterlijke herstelmaatregel of bestuurlijke maatregel opgelegd

Documenten

Andere gelijkaardige panden die jou mogelijks kunnen interesseren

property 7284556 cover photo
icon

Wichelen

Te renoveren woning op 1420 m2 - volop mogelijkheden in een rustige, groene omgeving Ontdek deze uniek gelegen woning op een ruim perceel van 1420 m2, perfect voor wie houdt van rust, privacy en pote

€ 349.000

icon
3
icon
1
icon
178
property 7019088 cover photo
icon

Lede

Welkom op Stichelendries, Lede – een rustige, kindvriendelijke locatie waar deze recent gebouwde energiezuinige woning (E17) te koop wordt aangeboden. Deze moderne halfopen bebouwing met drie volwaard

€ 699.000

icon
3
icon
2
icon
391
property 7276601 cover photo
icon

Lede

Bent u op zoek naar een charmante villa die volledig is gerenoveerd volgens de nieuwste woontrends én voorzien is van moderne domotica? Zoek niet verder! Deze prachtige, instapklare woning biedt maar

€ 749.000

icon
5
icon
2
icon
320
property 7192301 cover photo
icon

Wichelen

Ben je op zoek naar een halfopen bebouwing met een bewoonbare oppervlakte van maar liefst 262 m² en een EPC A? Zoek niet verder! Deze woning in de Krijgelstraat 20 heeft alles wat je zoekt. Indeling

€ 389.000

icon
4
icon
2
icon
262
property 7283157 cover photo
icon

Lede

Bent u op zoek naar een instapklare woning met 3 slaapkamers, centraal gelegen te Lede? Zoek niet verder! Deze nieuwbouwwoning van 2022 met hedendaagse domotica biedt alles wat je zoekt. Indeling va

€ 499.000

icon
3
icon
1
icon
150
property 7218222 cover photo
icon

Schellebelle

Bent u op zoek naar een ruime woonst gecombineerd met een unieke handelsruimte op een goede locatie? Dit duplex appartement van maar liefst 189 m² met een handelszaak/werkplaats van 590 m² in Schelleb

€ 475.000

icon
2
icon
1
icon
189
property 7218220 cover photo
icon

Schellebelle

Bent u op zoek naar een ruime woonst gecombineerd met een unieke handelsruimte op een goede locatie? Dit duplex appartement van maar liefst 189 m² met een handelszaak/werkplaats van 800 m² in Schelleb

€ 675.000

icon
2
icon
1
icon
189
property 7194284 cover photo
icon

Wichelen Schellebelle

Ben je op zoek naar een deels te renoveren woning nabij het Dorp van Schellebelle? Zoek niet verder! Deze woning met 3 ruime slaapkamers, garage en voldoende parkeerplaatsen heeft alles wat je zoekt!

€ 300.000

icon
3
icon
1
icon
169
property 7222783 cover photo
icon

Wetteren

Ben je op zoek naar een instapklare woning met 3 slaapkamers in het centrum van Wetteren? Zoek niet verder! Deze woning in de Van Cromphoutstraat 27 heeft alles wat je zoekt. Indeling gelijkvloers:

€ 325.000

icon
3
icon
2
icon
186
property 7286426 cover photo
icon

Wichelen

Gerenoveerde woning met 3 slaapkamers, bureau en 2 badkamers - centrale ligging! Ontdek deze recent gerenoveerde woning met drie ruime slaapkamers, een praktisch bureau ideaal voor thuiswerk en twee

€ 295.000

icon
3
icon
2
icon
125

Niet gevonden wat je zocht?

Neem contact met ons op en wij helpen jou de plek van jouw dromen te vinden.