Deze ruime en instapklare woning in Rijkevorsel biedt een bewoonbare oppervlakte van 308 m² en is afgewerkt met hoogwaardige materialen. De woning beschikt over drie slaapkamers, twee badkamers en een zolderverdieping van 64 m², bereikbaar via een vaste trap. Deze ruimte is nog volledig naar eigen wens in te richten.
Op het perceel van 587 m² vindt u een verzorgd terras, een zonnige tuin en een bijgebouw in eik van 25 m².
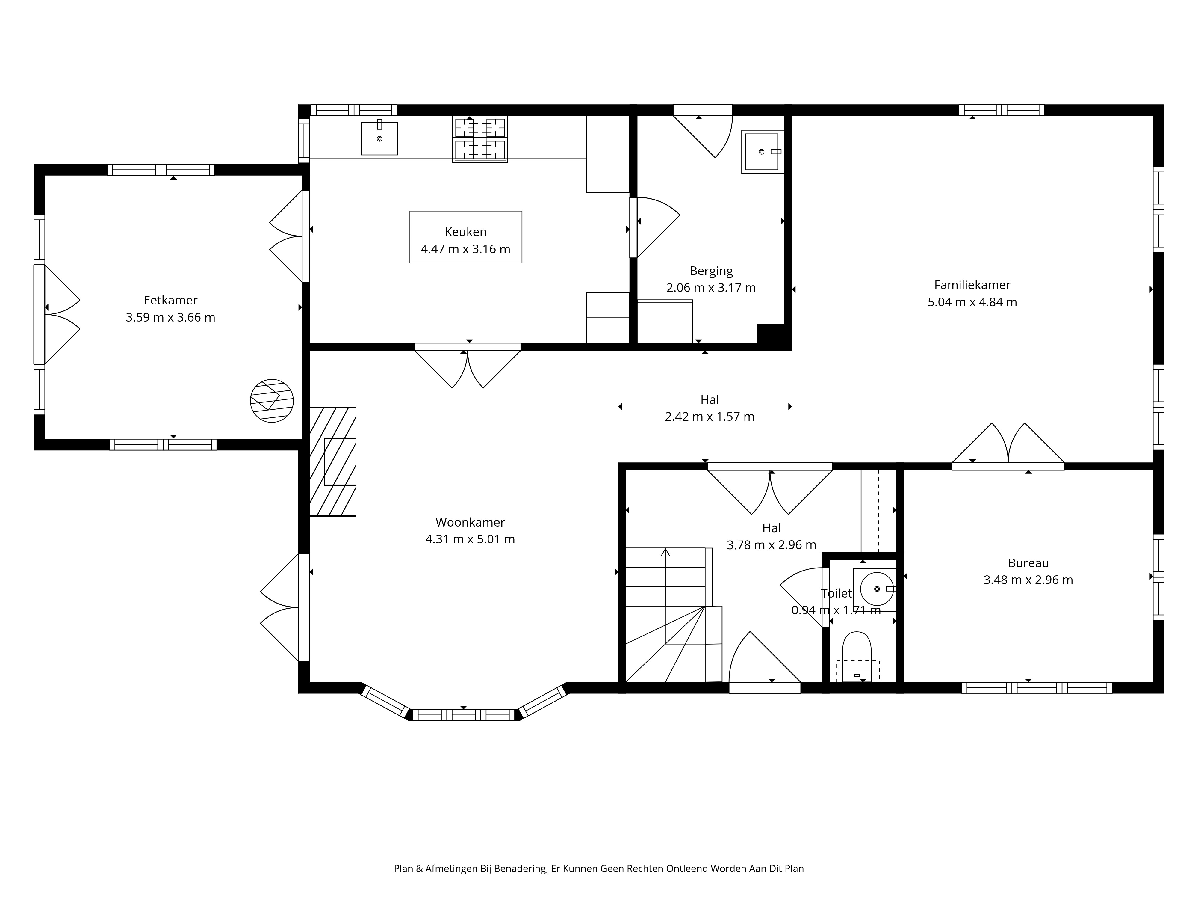
Indeling:
Gelijkvloers:
• Inkomhal met trappenhal
• Bureauruimte/Slaapkamer
• Woonkamer
• Familiekamer
• Twee eetkamers
• Keuken
• Berging/Wasplaats
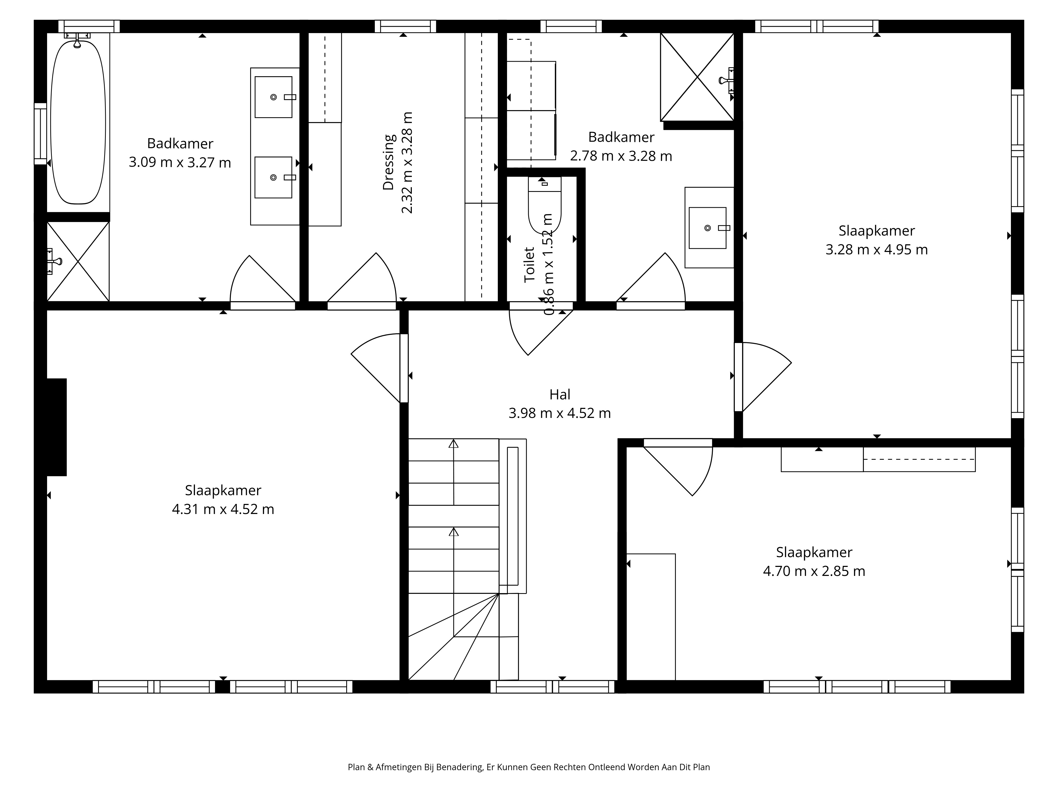
Eerste verdieping:
• Nachthal
• Slaapkamer 1 (19,5 m²) met dressing (8 m²)
• Slaapkamer 2 (16 m²)
• Slaapkamer 3 (13 m²)
• Badkamer 1
• Badkamer 2
Tweede verdieping:
• Zolderverdieping met vaste trap (64 m²), nog in te richten
Bijzonderheden:
- Natuurstenen werkblad keuken met papegaaienbek
- Eiken bijgebouw en aparte houtschuur
- Zonnepanelen 6570Wp
- Woonkamer is net herschilderd
- Regenwaterput 7500l
- Keukentoestellen van Miele en Boretti
- Interieur volgens ontwerp van Piet Boon
Deze eigendom combineert ruimte, comfort en een verfijnde afwerking op een uitstekende locatie. Voor meer informatie of het inplannen van een bezichtiging, neem contact met ons op.
Mis deze kans niet! Plan snel je bezoek en ontdek deze ruime woning zelf.
0474 34 43 00
bart.gerardi@albert.immo
www.albert.immo
Bij Albert kom je thuis!