icon

Herzele

Provincieweg 158/B, 9552, Herzele, BE
HuisTe koop

€ 270.000

icon
2
icon
1
icon
172 m²

Beschrijving

Te koop: Casco woning 3 met veel potentieel – aan 6% btw
Woning 3 maakt deel uit van een kleinschalig woonproject met meerdere woningen, opgevat als een aangename woongemeenschap. Dit biedt extra voordelen zoals meer veiligheid, een rustige woonomgeving en een sterk buurtgevoel.
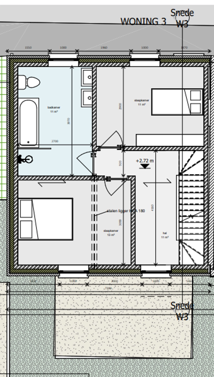
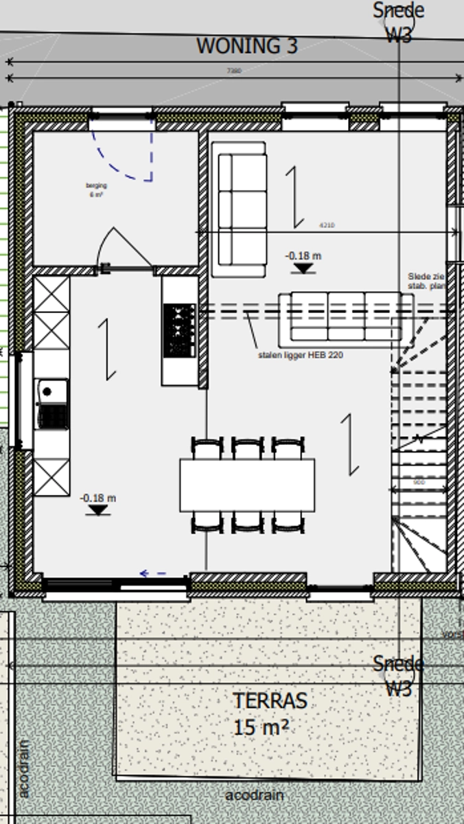
De casco woning vormt een uitstekende basis om volledig naar eigen smaak af te werken en beschikt over 2 slaapkamers, een badkamer, een keuken en een open leefruimte die zorgt voor een ruimtelijk en licht gevoel. Daarnaast zijn er parkeergelegenheden voorzien, wat extra comfort en gemak biedt.
Verkoop aan 6% btw (onder voorwaarden).
Interesse? Neem gerust contact op voor meer informatie of een bezoek.

Algemeen

Referentie:
Woning 3
Bouwjaar:
2025
Tuin:
Ja
Parking:
Ja
Garage:
Neen

Interieur

Woongedeelte:
172 m²
Slaapkamers:
2
Badkamer:
1
Kelder:
Neen

Overstromingsgevoeligheid

Overstromingsgevoelig gebied:
Niet overstromingsgevoelig
Afgebakende zone:
Geen
P-score:
A
G-score:
A

Stedenbouwkundige informatie

Bouwvergunning:
Ja
Verkaveling vergunning:
Ja
Stedelijke bestemming:
Woongebied
Voorkooprecht:
Neen
Soort rechterlijke beslissing:
Geen rechterlijke herstelmaatregel of bestuurlijke maatregel opgelegd
Dagvaarding voor inbreuk op de stedenbouwkundige voorschriften:
Neen

Andere gelijkaardige panden die jou mogelijks kunnen interesseren

Niet gevonden wat je zocht?

Neem contact met ons op en wij helpen jou de plek van jouw dromen te vinden.