icon

Santa Rosalia, Costa Calida - Murcia

Santa Rosalia, Costa Calida - Murcia, ES
HouseFor sale

€1,300,000

icon
3
icon
4
icon
600 m²
icon
336 m²

Description

Exceptional off-plan single-level villa frontline to the lake – Santa Rosalía Lake & Life Resort
Located in one of the most prestigious settings of Santa Rosalía Lake & Life Resort, this exceptional off-plan single-level villa enjoys a frontline position overlooking the lake, combining contemporary architecture with refined luxury living.
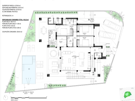
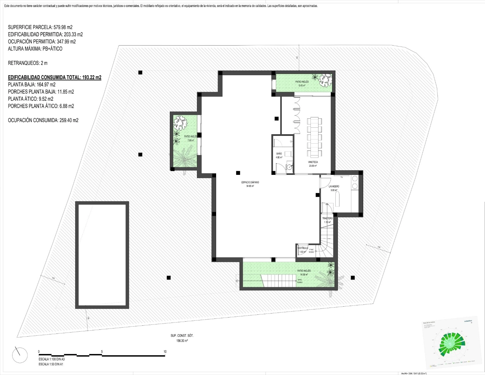
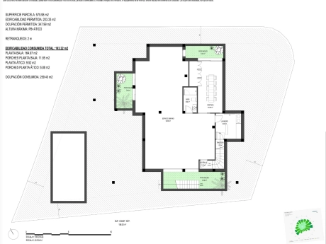
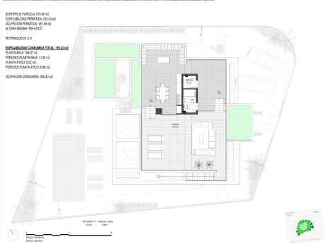
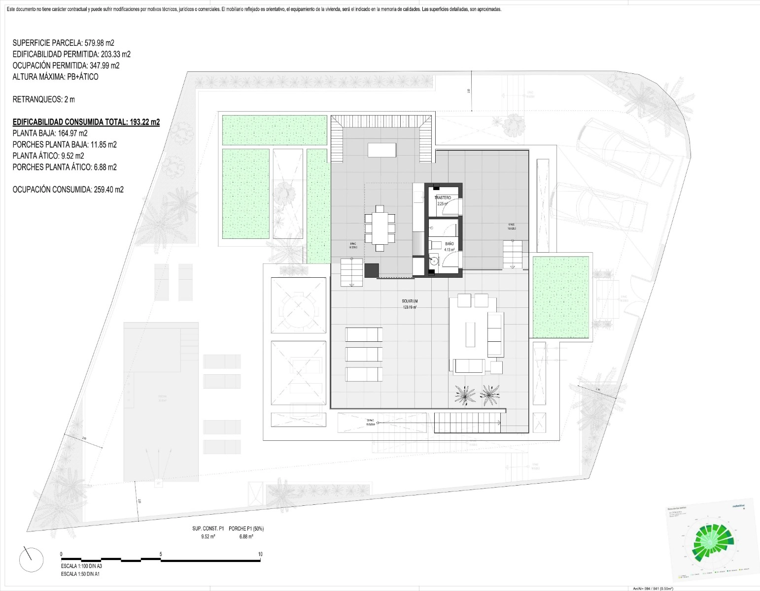
The villa offers a total built area of 335.91 m², designed to maximise space, light and comfort.
The ground floor of 171.61 m² features:


3 spacious bedrooms


3 elegant bathrooms


Guest toilet


Open-plan living and dining area


Designer kitchen with high-end finishes


Private office


Bicycle storage


Fully equipped summer kitchen with direct access to the terrace and private swimming pool


The spectacular 125 m² solarium provides an exclusive outdoor living area and includes:


A second summer kitchen


Toilet


Storage room
Enjoy panoramic lake views, total privacy and all-day sunshine.


The 164.30 m² basement, fully tiled and plastered, can be converted into additional living space such as guest suites, wellness area, gym or home cinema. It benefits from:


3 English patios with a total surface of 31.87 m² for natural light


Laundry room


Technical room


Additional toilet facilities


In total, the villa offers 6 toilets, ensuring exceptional comfort and functionality.
A rare frontline property, ideal as a luxury residence, exclusive holiday home or prime investment in one of Southern Spain’s most sought-after resorts.

General

Reference:
Chic-1303

Interior

Living Area:
336 m²
Bedrooms:
3
Bathrooms:
4
Cellar:
No

Exterior

Land Area:
600 m²
Swimmingpool:
Yes

Other similar properties that may interest you

Didn't find what you were looking for?

Get in touch with us, we'll help you find your dream property.